アヴニール御所南Ⅱ
京都市営地下鉄東西線 京都市役所前駅 徒歩6分
地区を選ぶ|すべて
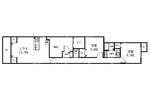
2LDK/60.59㎡~64.69㎡

物件概要
| 種別 | マンション |
|---|---|
| 所在地 | 京都府京都市中京区六丁目279-2 |
| 交通機関 | 京都市営地下鉄東西線 京都市役所前駅 徒歩6分 |
| 建築構造 | 鉄筋コンクリート造 |
| 総戸数 | 5戸 |
| 築年数 | 2014年2月 |
| 間取りタイプ | 2LDK |
| 間取り内訳 | 複数タイプ有 |
| 専有面積 | 60.59㎡~64.69㎡ |
| 方位 | 東/西 |
| 駐車情報 | 無 |
| 設備 | オートロック/エレベーター/駐輪場/インターネット対応/BSデジタル対応/都市ガス |
■360゜写真
■写真

■間取り

■間取り

■地図










